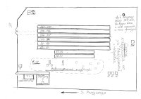
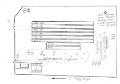
Имена и фамилии, похороненных на Наровлянском еврейском кладбище остались в памяти благодаря подвижнической деятельности Семёна Михайловича Рабиновича, и Наума Котик. Они провёли работу по составлению списков.
Составил схему захоронений и отредактировал списки Роман Михайлович Калинин.
Перезахороненные из деревень,
убитые во время Великой Отечественной войны 1941-1945 г.г.
- Каплан Шимон, Каплан Голда, Каплан Рива, Газман Шейна
- Нодельман Галина Яковлевна с детьми
- Шульман Рива Мееровна (из Углов)
- Шарайзина Геня… Ум. 26.08.1918г.
- Лохман (эпитафия на древнееврейском)
- Памятник без надписи
- Памятник без надписи
- Слуцкий Моше М. ум. В 1921 г.
- Карпман Х.Х. ум. 28.01.1932 г.
- Шехтман Добруся ум. 1936 г.
- Пительман (эпитафия на древнееврейском)
- Литвак (гранитная тумба) 1932 г.
Наумов Н.А., Шапочник, Кисина 1922 г.
- Бушелева Роза Израилевна 1898-1937 г.
- Надгробная плита без надписи
- Памятник (осколки) эпитафия на древнееврейском
- Кисина, Рахиля Наумовна, Шапочник ум. 16.04.1929 г. эпитафия на древнееврейском
- Шухман Бейля Гершевна 1889-1935
19 Плита разрушена (без надписи)
- Плита разрушена (без надписи)
- Плита разрушена (без надписи)
- Плита разрушена (без надписи)
- Гейфман Э.Б. ум. 1933 г.
- Плита без надписи
- Плита без надписи
- Плита без надписи.
- Плита без надписи
- Плита без надписи, памятник из гранита
- Плита без надписи
- Плита без надписи
- Карпман Хая Григорьевна 1867-1937
- Духина Хава Хаимовна 1896-1937
- Плита разрушена
- Рапопорт Рахиль Яковлевна 1908- ?
- Плита разрушена
- Плита Разрушена
- Лейфман Хая Иосифовна 1986- ?
- Плита без надписи
- Плита без надписи
- Городецкий Довид Львович 1864-1928
- Карпман Симон Лейв… ум. 1930
- Плита без надписи
- Плита без надписи
- Плита без надписи
- Шустерман М.А. 1904-1980
- Шустерман Лазар Аронович 1898-1926
- Зельдина Роза Борисовна 1919-2002
конец кладбища (довоенной части)
- Козловский Иосиф Яковлевич
- Плита без надписи
- Бухман Ицхок Лейбович ум. 1934
- Гейфман Арон Срольевич1885-1946
Сара Абрамовна 1881-1943
Михаил Аронович 1911-1941
Рахиль Ароновна 1918-1942
(Памятник Гейфмана переустановлен и находится справа от главного входа)
конец кладбища – (ряда?)
- Шарайзина Рахиль Боруховна 1905-1983
- Кацман Б.И.
- Газман Малка Вольковна 1903-1941
- Гузман Броха Менашевна 1978-1941
- Бухман Броня
- Аарон, сын Натана Фишмана 1888-1936 эпитафия на древнееврейском
- Фишман Натан 1865-1938 мраморный столбик
- Плита разрушена
конец кладбища (ряда?)
- Кацман Ида Михайловна 1947-1964
- Плита без надписи
- Гейфман Аня Вениюминовна 1858 1960
- Цукерман Роза Яковлевна 1959?- ?
- Цукерман Люда Ефимовна 1906 -1952
- Железняк Хая Наумовна 1900-1952
- Радовильская Сара Янкелевна 1878-1956
- Штумер Бася Мотылевна 1887-1956
- Кацман Белла Исеровна 1892-1955
- Рабинович Хася Шимсуновна 1901-1981
- Траспова (ур. Рабинович) Рива Мотылевна 1929-1953
70-1 Рабинович Семён Михайлович 1925-2005
- Люлева Кейля Бенционовна 1903-1953
- Эльпинер Фира Моисеевна 1919-1952
73 Могила – песчаный холм
- Гурецкая Рахиль Хаимовна 1911-1953
- Эльпинер Михля Нафтольевна 1887-1951
- Рапопорт Рахиль Яковлевна 1930-1951
- Шерайзина Рива Боруховна 1877-1951
- Кравец Хана Берковна 1883-1950
- Зельдина Юдес Берковна 1905-1949
- Гендельман Б.А.
- Гендельман Р.Я. 1885-1945
- Гендельман А.А. 1876-1944
- Карпман Менахим Симин ? -1946
- Зельдин А.Р.
- Шустерман Мордух Маневич 1868-1940
- Гасман Иосиф Борисович 1900-1940
- Горовой Шая Борухович 1901-1946
- Френкель Михаил Григорьевич 1895-1976
- Ваксер Бенцион Элькевич 1893-1980
- Ваксер Нина Борисовна 1902-1989
- Архамеел Аврамович 1905-1976
конец кладбища (ряда?)
- Гарбер Роза Ефимовна 1901-1963
- Гинзбург ФрумаЭльевна 1884-1960
- Фельдман Двейра Хаимовна 1883-1960
- Шнапер Злата 1864-1957
97.
- Фридман Элька Юделевна 1896-1956
- Подгорская
- Кравец Мера Вольковна 1924-1956
- Лейфман В. К. 1910-1954
- Шустерман Михля Лейбовна 1890-1951
- Зарецкая Р.П.
- Шустерман Хася Марьяновна 1893-1952
105.
106.
- Бураковская Хая Самуиловна 1894-1950
- Лахман
- Кравец РисяЛейбовна 1894-1949
- Голод А.Э. 1914-1949
111.
112.
- Железняк Эйдля Симоновна 1873-1947
- Фридман Роза ?-1947
- Гузман Фрума Ошеровна 1925-1945
- Нодельман Л. 1881-0946
- Люлев Михаил Волькович 1861-1946
- Бухман Мордух-Зусь Абрамович 1883-1949
- Шварц Хаим Кушелевич 1896-1951
- Сухаренко Мендел Бенцианович 1880-1953
- Лещинский Пиня Михайлович 1916-1950
- Кравченко Аврам Исакович 1874-1950
131.
- Подгорский Шолом Шаевич 1898-1952
- Нодельман Х. 1887-1952
- Ольман Айзик Евсеевич ? -1952
- Фридман Меер Залманов 1882-1953
- Майзлин Мотя Иосифович 1889-1953
- Этин Лев Абрамович 1887-1954
- Шульман Яков Ефимович ?- 1955
- Хейфец Ефим Захарович 1923-1988
- Штумер Михаил Моисеевич 1925-1988
- Фельдман Соня Семёновна 1908-1983
- Фридман Давыд Янкелевич 1896-1974
- Штейнман Лея Еселевна 1889-1973
- Сиротина Любовь Нотовна 1886-1971
- Спектор Миня Гиселевна 1886-1967
- Неменман Эстер Борисовна 1897-1961
- Хайтман Софья Самуиловна 1928-1967
- Слуцкая Года Шлёмовна 1885-1967
- Гарцман Хая-Нися Янкелевна 1891-1967
- Духина Берта Борисовна 1934-1967
- Френкель Нехама Боруховна 1900-1966
- Резникова Неха Яковлевна 1889-1966
- Резников Зусь Евсеевич 1879-1967
- Люлева Софа-Мера Гиршевна 1880-1966
- Зелёнко Рахиль Цалеровна 1889-1966
- Кветный Гирш Аронович 1896-1964
- Каплан Исроэль-Хаим Иосифович 1876-1959
160.
- Кравец Лейзер Шмуйлович 1881-1957
- Гинзбург 1890-1955
- Гендельман Э. Л.
- Штейнбах Наум Абрамович 1904-1957
- Бушелев С.А. 1891-1957
- Кацман Герш Аронович 1891-1959
- Фельдман Иосиф Ахейзорович 1906-1960
- Ольман Абрам Евсеевич 1896-1963
- Шустерман Зусь Лейвикович 1888-1963
Конец кладбища (ряда?)
- Чухман Муня Шлёмович 1917-1992
- Гутман Мария Борисовна 1912-1984
- Совина Мера Иосифовна 1896-1985
- Котик Мера Залмановна 1905-1992
- Левин Михаил Захарович 1909-1984
- Гарцман Мордух Зусевич 1921-1983
- Гарцман Фрида Зусевна 1919-1983
- Миневич Фрида Захаровна 1919-1974
- Гутман Фрида Семёновна 1918-1971
- Шустерман Маша Эльевна 1895-1971
- Хейфец Маша Мордуховна 1891-1970
- Фридман Хая Мордуховна 1886-1970
- Шварц Рахиль Лазаревна 1896-1969
- Гутман Рахиль Хаимовна 1883-1969
- Чухман Мария Фроимовна
- Шустерман Соня Лейбовна 1909-1969
- Вайнблат Сара Яковлевна 1888-1971
- Вайнблат Борис Борисович 1888-1967
- Хейфец Зусь Борухович 1887-1967
- Карпман Абрам Хаймович 1890-1967
- Карпман Хана Юделевна 1900-1971
- Кравец Лейба Залманович 1881-1964
- Цветов Абрам Маркович 1912-1965
- Каплан Михель Зайвелович 1891-1971
Каплан Владимир Михелевич 1923-1942
- Гершович Валерий Ефимович 1949-1968
- Гершман Давыд Гиршевич 1893-1966
- Гершман Фрума Мордуховна 1896-1973
- Бушелев Михаил Аркадьевич 1894-1966
- Берман Моисей И… 1882-1969
- Жилина Ира Георгиевна
- Котик Исак Лейвикович 1903-1969
- Дынин Зусь Евсеевич 1894-1970
- Чухман Абрам Исакович 1904-1970
- Штумер Мовша Самойлович 1878-1970
- Симанович Года Давыдовна 1898-1980
- Симанович Григорий Моисеевич 1889-1983
Конец ряда
- Чухман Ася Ильинична 1923-2004
- Либман Изяслав Яковлевич 1929-1985
- Дынова Полина Иосифовна 1903-1994
- Боровик Маня Ефимовна 1910-1994
- Каплан Яков Израилевич 1903-1988
- Штрикман Борис Абрамович 1899-1986
- Штрикман Сара Эльевна 1896-1975
- Бененсон С.М. 1875-1973
- Каплан Рахиль Залмановна 1878-1972
- Залан Бася Наумовна 1905-1972
- Бухман Нехама Ицковна 1891-1971
Бухман Фира Мерковна 1920-1940
Бухман Михаил Меркович 1923-1943
- Ольман Елизавета Израилевна 1896-1971
- Казимировская Рива Гилеровна 1911-1972
- Чухман М.Б. 1895-1974
- Чухман Э.К. 1888-1973
- Кравченко Григорий Львович 1907-1975
- Кравченко Борис Волькович 1905-1974
- Бухман Марк Иосифович 1891-1973
- Рапопорт Яков Срулевич 1896-1973
- Пительман Абрам-Шлёма Борухович 1881-1974
Пительман Фейга-Лея Акцелевна 1887-1944
- Эльпинер Хаим-Моше Герцлевич 18891974
- Каплан Бася Мордуховна 1897-1985
- Подгорский Ейна Шаевич 1894-1974
- Духин Ефим Моисеевич 1947-1977
Духин Семён Шевелевич 1975-1993
- Духин Абрам Семёнович 1921-1944
- Коробко Семён Волькович 1903-1975
- Бухман Мовша Ицкович 1885-1975
- Шустерман Иосиф Аронович 1895-1976
- Шкловский Леонид Аронович 1912-1996
- Брегман Сара Мефовна 1887-1980
- Газман Нина Ароновна 1905-1981
- Газман Поля Гильевна 1905-1981
Конец ряда
- Шкловская Эстер
- Свиткина Соня Моисеевна 1897-1983
- Свиткина-Бушелева Роня Моисеевна 1902-1983
- Кацман Хана Бенцаминовна 1904-1983
- Гендельман Рива Янкелевна 1914-1982
- Сондак Софья Лазаревна 1984-1982
- Майзлина Сима Ирмовна 1897-1979
- Подгорская Доба Янкелевна 1895-1979
- Ильицкая Любовь Ирмовна 1893-1978
- Рахлевская Раиса Анатольевна 1939-1977
- Ольман (ур. Каплан) Клара Яковлевна 1928-1993
- Зельдин Янкель Аронович 1902-1978
- Гершович Нися Ниселевна 1900-1978
- Железняк Елена Исаковна 1906-1977
Владимир Лазаревич 1928-1944
- Железняк Лазарь Волькович 1893-1989
- Ольман Блюма Борисовна 1903-1986
- Ольман Ошер Евсеевич 1887-1977
- Шухман Ита Боруховна 1902-1977
Шульман Мане Гиршевич 1898-1942
- Лаевская Рахиль Леоновна 1899-1979
- Кан Михаил Борисович 1915-1979
- Фельдман Мендел Наумович 1914-1980
- Фридман Абрам Моисеевич 1898-1980
- Рапопорт Татьяна Иосифовна 1896-1983
- Кравченко Бронислава Семёновна 1907-1983
- Газман Гися Берковна 1897-1983
- Духин Михаил Семёнович 1916-2004
- Эльпинер Эсфирь Моисеевна 1913-1983
- Коробко Геня Марковна 1907-1983
- Шехтман Арон Гиршевич 1912-1983
Конец ряда
- Залан Нина Евсеевна 1925-1995
- Залан Евсей Абрамович 1903-1991
- Кравец Рива Вольковна 1949-1993
- Сергинеко Нина Вольковна 1933-1989
- Кравец Хая Вольковна 1915-1993
- Чухман Михаил Ефремович 1922-1989
- Бураковская Геня Иосифовна 1924-1988
- Газман Мера Израилевна 1928-1988
- Кравец Фаня Евсеевна 19971987
- Зелёнко Самуил Израилевич 1918-1986
- Биберман Михаил Михайлович 1927-1986
- Бушелева Малка Менашевна 1895-1986
- Шерман Цыля Хаймовна 1894-1985
- Шерман Шалом Абрамович 1894-1988
- Грайфер Самуил Григорьевич 1912-1985
- Симанович Роза Яковлевна 1900-1992
- Цукерман Яков Матусевич 1922-1989
- Прусская Бася Ароновна 1905-1990
- Прусский Леонид Шоломович 1946-1988
- Либман Песя Боруховна
- Либман Рахиль Львовна 1937-1988
- Биберман Лиза Львовна 1928-1987
- Подгорская Мария Петровна 1931-1998
- Кравченко Абрам Моисеевич 1925-1996
- Максимчук Виктор Кириллович 1939-1996
- Кравец Раиса Исаковна 1911-1999
- Максименко Надежда Васильевна 1921-2000
- Котик Захар Исакович 1945-1963 (утонувший)
№ 294 и № 295 находятся в стороне от общего захоронения (в углу кладбища слева от входа)
- Беленький Марик Яковлевич (похоронен отдельно в конце кладбища у западной стороны.
263а. Духина Сарра Григорьевна ?-2005
207а. Собина Юля Львовна (Костенич) 1922-2005
289А. Кравец.
300-290а (?) Кравченко Эльна Гиршевна 1924-2007
238а. Шкловский Михаил Леонидович
289а. Подгорский Роман Шоломович
Боровик Наум Анатольевич 1941-2015 (захоронен прах в урне)
Список погребённых на Наровлянском Еврейском кладбище
(по алфавиту, с указанием № захоронения на схеме)
№п/п Фамилия, имя, отчество Годы жизни № захоронения на схеме
- Аарон, сын Натана Фишмана 1888-1936 №57
- Беленький Марик Яковлевич №296
- Бененсон С.М. 1885-1973 №213
- Бененсон Х.Б. 1878-1942 №213
- Берман Моисей И. 1882-1969 №198
- Биберман Лиза Львовна 1928-1987 №288
- Бибарман Михаил Михайлович 1927-1986 №277
- Боровик Наум Анатольевич 1941-2015 Б/Н
- Боровик Маня Ефимовна 1910-1994 №209
- Брегман Сара Мееровна 1887-1980 №235
11 . Бураковская Геня Иосифовна 1924-1988 №273
- Бураковская Хая Самуиловна 1894-1950 №107
- Бухман Броня № 56
- Бухман Марк Иосифович 1891-1973 №223
- Бухман Ицхак Лейбович ум. 1934 №50
- Бухман Мовша Ицкович 1885-1975 №232
- Бухман Морде-Зусе Абрамович 1883-1949 №122
- Бухман Нехама Ицковна 1891-1971 №216
Бухман Фрида Марковна 1920-1942 № 54
Бухман Михаил Маркович 1923-1943
- Бушелев Михаил Аркадьевич 1894-1966 №197
- Бушелев С. А. 1891-1957 №165
- Бушелева Малка Менашевна 1895-1986 №278
- Бушелева Роза Израилевна 1898-1937 №14
- Бушелева-Свиткина Роза Моисеевна 1902-1983 №240
- Вайнблат Борис Борисович 1888-1967 №187
- Вайнблат Сара Яковлевна 1888-1971 №186
- Ваксер Бенцион Эльевич 1893-1980 № 89
- Ваксер Нина Борисовна 1902-1989 № 90
- Газман Гися Берковна 1987-1983 №262
- Гасман Иосиф Борисович 1900-1940 №86
- Газман Малка Вольковна 1903-1941 №54
- Газман Мера Израилевна 1928-1988 №274
- Газман Нина Ароновна 1905-1981 № 236
- Гарбер Роза Ефимовна 1901-1963 №92
- Гарцман Мордух Зусевич 1922-1983 № 175
- Гарцман Фрида Зусевна 1919-1983 №176
- Гарцман Хая-Нися Янкелевна 1891-1967 №151
- Гейфман Арон Срольевич 1865-1946 №51
Сара Абрамовна 1881-1943
Михаил Аронович 1912-1941
Роза Ароновна 1918-1942
- Гейфман Э.Б. №23
- Гейфман Фаня Бенциановна 1898-1960 №62
- Гендельман А.А. 1876-1944 № 82
- Гендельман Э.Л. № 163
- Гендельман Р. А. 1890-1945 №81
43.Гендельман Рива Янкелевна 1914-1982 №242
ЯнкельНиселевич 1890-1941
Рахиль Янкелевна 1895-1941
Нисель Янкелевич 1915-1941
- Гендельман Б.А. №80
- Гершман Давид Гиршевич 1893-1966 №195
- Гершман Фрума Мордуховна 1896-1973 № 196
- Гершович Валерий Ефимович 1949-1968 №194
- Гершович Нися Ниселевна 1900-1978 №150
- Гинзбург Давид Элькевич 1890-1955 №162
- Гинзбург Фрума Эльевна 1884-1960 №94
- Голод А. Э. 1914-1949 №110
- Горовой Шая Борухович 1901-1946 №87
- Городецкий Давид Львович 1864-0928 №40
- Грайфер Самуил Григорьевич 1912-1985 №281
- Гузман Броха Менашевна 1871-1941 №55
- Гузман Поля Гильевна 1905-1981 № 237
- Гузман Фрума Ошеровна 1926-1946 №116
- Гурецкая Рахиль Хаймовна 1911-1952 №74
- Гутман Мария Борисовна 1912-1984 №171
- Гутман Рахиль Хаймовна 1883-1969 №183
- Гутман Фрида Семёновна 1918-1971 №178
- Духин Семён Шевелевич 1895-1975 №229
Духин Абрам Семёнович 1921-1944
- Духин Ефим Моисеевич 1947-1977 №230
- Духин Моисей Симонович 1916-2004 №263
65.Духина Сара Григорьевна ? -2005 №263А
- Духина Берта Борисовна 1904-1967 №152
- Духина Хава Хаймовна 1896-1937 №32
- Дынин Зусь Евсеевич 1894-1970 №201
- Дынова Полина Иосифовна 1903-1994 №208
- Железняк Елена Исааковна 1906-1977 №251
- Железняк Лазарь Волькович 1893-1989 №252
- Железняк Хая Наумовна 1900-1952 №65
- Железняк Эйдля Симоновна 1873-1947 №113
- Жилина Ирина Георгиевна 1973-1974 №199
- Залан Евсей Абрамович 1903-1991 №268
- Залан Нина Евсеевна 1929-1995 №267
- Залан Бася Наумовна 1905-1972 №215
- Зелёнко Рахиль Целеровна 1889-1966 №157
- Зелёнко Самуил Израилевич 1918-1986 №276
- Зельдин Янкель Аронович 1902-1978 № 249
- Зельдина Роза Борисовна 1919-2002 №47
- Зельдина Юдес Берковна 1905-1949 №79
- Зельдин А.Р. №84
- Зарецкая Р. П. 1891-1950 №103
- Ильицкая Любовь Ирмовна 1893-1978 №246
- Казимировская Рива Гилеровна 1911-1972 №218
- Кан Михаил Борисович 1915-1979 №257
- Каплан Бася Мордуховна 1897-1985 №227
- Каплан Исроэл-Хаим Иосифович 1876-1959 №159
- Каплан МихельЗайвелев 1891-1978 №193
Каплан Владимир Михеевич 1923-1942
- Каплан Рахиль Залмановна 1878-1972 №214
- Каплан Шимон №2
- Каплан Голда №2
- Каплан Рива №2
- Каплан Яков Израилевич 1903-1988 №210
- Карпман Абрам Хаймович 1890-1967 №189
- Карпман Хана Юделевна 1900-1971 №190
- Карпман Менахим Симонович ?-1946 №83
- Карпман Симон Лейвикович ? -1930 №41
- Карпман Х.Х. ?- 1932 №10
- Карпман Хана Юделевна 1900-1971 №190
- Карпман Хая Григорьевна 1867-1937 №31
- Кацман Б.И. №53
- Кацман Бела Исеровна 1892-1955 №68
105.Кацман Герш Аронович 1891-1959 №166
- Кацман Ида Михайловна 1947-1964 №60
- Кацман Хава Бениаминовна 1904-1983 №241
- Кветный Гирш Аронович 1876-1959 №158
- Кисина Рахиля Наумовна Шапочник ? -1929 №17
- Козловский Иосиф Яковлевич №48
- Коробко Геня Марковна 1907-1983 №265
- Коробко Семён Волькович 1903-1975 №231
- Костенич (Собина) Юлия Львовна 1922-2005 №207А
- Котик Захар Исаакович 1945-1963 №294
- Котик Исаак Лейвикович 1903-1969 №200
- Котик Мера Залмановна 1905-1992 №173
- Кравец №289А
- Кравец Лейба Залманович 1981-1964 №191
- Кравец Лейзер Шмойлович 1981-1957 №161
- Кравец Мера Вольковна 1924-1956 №100
- Кравец Раиса Исааковна 1911-1999 №292
- Кравец Рива Вольвовна 1919-1993 №269
- Кравец Рыся Лейбовна 1894-1949 №109
- Кравец Фаня Евсеевна 1897-1987 №295
- Кравец Хая Вольковна 1915-1993 №271
- Кравец Хана Берковна 1883-1950 №78
- Кравченко Григорий Львович 1907-1975 №221
- Кравченко Абрам Моисеевич 1925-1996 №290
- Кравченко Аврам Исаакович 1874-1950 №129
- Кравченко Борис Вольфович 1905-1974 №222
- Кравченко Бронислава Семёновна 1907-1982 №261
- Кравченко Эльна Гиршевна 1928-2007 №290А
- Лахман №108
- Лаевская Рахиль Ароновна 1899-1978 №256
- Левин Михаил Захарович 1889-1984 №174
- Лейфман З. К. 1910-1954 №101
- Лейфман Хая Иосифовна 1886-1982 №37
- Лещинский Пиня Михайлович 1916-1950 №128
- Литвак ? -1932 № 14
- Наумов Н.А. Шапошник, Кисина ? -1922 №14
- Либман Изяслав Яковлевич 1929-1985 №207
142.Либман Песя Боруховна №286
143.Либман Рахиль Львовна 1937-1988 №287
- Лохман №6
- Люлев Михаил Волькович 1861-1946 №119
- Люлева Кейля Бенционовна 1903-1953 №71
- Люлева Сара-Мера Гиршевна 1880-1966 №156
- Майзлин Мотл Иосифович 1889-1953 №136
- Майзлина Сима Ирмовна 1897-1979 №244
- Максименко Надежда Васильевна 1921-2000 №293
- Максимчук Виктор Кириллович 1939-1995 №291
- Миневич Фрида Захаровна 1929-1974 №177
153.Немейман Эстер Борисовна 1897-1967 №148
- Нодельман Х . 1887-1952 №133
- Нодельман 1881-1946
- Ольман (ур.Каплан) Клара Яковлевна 1928-1983 №248
- Ольман Абрам Евсеевич 1896-1963 №168
- Ольман Айзик Евсеевич ? -1952 №134
- Ольман Блюма Борисовна 1903-1986 №253
- Ольман Елизавета Израилевна 1896-1971 №217
- Ольман Ошер Евсеевич 1887-1977 №254
162.Пительман №12
- Пительман Абрам-Шлёма Борухович 1881-1974 №225
- Пительман Фейга-Лея Акцелевна 1887-1944 №225
- Подгорская №99
- Подгорская Доба Янкелевна 1895-1979 №245
- Подгорская Мария Петровна 1931-1988 №289
- Подгорский Роман Шоломович №289А
- Подгорский Ейна Шаевич 1894-1974 №228
- Подгорский Шолом Шаевич 1898-1952 №132
- Прусская Бася Ароновна 1905-1990 №284
- Прусский Леонид Шоломович 1946-1988 №285
- Рабинович Хася Шимсуновна 1901-1981 №69
- Рабинович Семён Михайлович 1925-2005 №70.1
Рабинович Мотыль Вульфович погиб в 1942
- Радовильская Сара Янкелевна 1897-1958 №66
- Рапопорт Рахиль Яковлевна 1908-1924 №34
- Рапопорт Рахиль Яковлевна 1930-1951 №76
- Рапопорт Татьяна Иосифовна 1896-1983 №260
- Рапопорт Яков Срулевич 1896-1973 №224
- Рахлевская Раиса Анатольевна 1939-1977 №247
- РезниковаНеха Яковлевна 1889-1966 №154
- Резников Зусь Евсеевич 1879-1967 №155
- Свиткина Соня Моисеевна 1897-1983 №239
- Сергиенко Нина Вольковна 1933-1989 №270
- Симанович Года Давидовна 1898-1981 №204
- Симанович Григорий Моисеевич 1889-1983 №205
- Симанович Роза Яковлевна 1900-1992 №282
- Сиротина Любовь Нотовна 1886-1971 №146
- Слуцкая Года Шлёмовна 1885-1967 №150
- Слуцкая Моше ? -1921 №9
- Совина Мера Иосифовна 1896-1985 №172
- Сондак Софья Лазаревна 1894-1982 №243
- СпекторМиняНиселевна 1886-1967 №147
- Сухаренко Мендел Бенцианович 1880-1952 №125
- Траспова (ур. Рабинович) Рива Мотылевна 1928-1953 №70
- Фельдман Исер Айхейзорович 1906-1960 №167
- Фельдман Мендел Наумович 1914-1980 №258
- Фельдман Соня Семёновна 1908-1993 №142
- Фельдман Двейра Хаймовна 1883-1960 №95
- Фишман Натан 1865-1938 №58
- Френкель Михаил Григорьевич 1895-1976 №88
- Хейфец Ефим Захарович 1923-1988 №140
- Хейфец Зусь Борухович 1887-1967 №188
- Фельдман Исер Ахейзорович 1906-1960 №167
- Фельдман Мендел Наумович 1914-1980 №258
- Фельдман Рувим Янкелевич
- Фельдман Соня Наумовна 1908-1993 №142
- Френкель Михаил Григорьевич 1895-1976 №88
- Френкель Нехама Боруховна 1900-1966 №153
- Фридман Абрам Моисеевич 1928-19803 №259
- Фридман Давид Янкелевич 1896-1974 №143
- Фридман Меер Залманов 1882-1953 №135
- Фридман Роза ? -1947 №114
- Фридман Хая Мордуховна 1886-1970 №181
- Фридман Элька Юделевна 1896-1956 №98
- Хайтман Софья Самуиловна 1928-1967 №149
- Хейфец Ефим Захарович 1923-1988 №140
- Хейфец Зусь Борухович 1887-1967 №188
- Хейфец Маша Мордуховна 1891-1970 №180
- Цветов Абрам Маркович 1912-1965 №192
221.Цукерман Роза Яковлевна 1959-? №63
- Цукерман Люда Ефимовна 1906-1952 №64
- Цукерман Яков Матусович 1922-1989 №283
- Чухман Абрам Исаакович 1904-1970 №201
- Чухман Ася Ильинична 1923-2004 №206
- Чухман Мария Фроимовна №184
- Чухман М.Б. 1885-1974 №219
- Чухман Михаил Ефимович 1922-1989 №272
- Чухман Муня Шломович 1917-1992 №170
- Чухман Э.К. 1988-1975 №220
- Шварц Рахиль Лазаревна 1896-1969 №182
- Шварц Хаим Кушелевич 1896-1951 №124
233.Шерайзина Геня ? -1981 №5
- Шерайзина Рахиль Боруховна 1909-1983 №52
- Шерайзина Рива Боруховна 1887-1951 №77
- Шерман Цыля Хаймовна 1894-1988 №279
- Шерман Шолом Абрамович 1894-1988 №280
- Шехтман Арон Гиршевич 1912-1983 №266
239.Шехтман Добруся ? -1936 №11
- Шкловская Эстер №238
- Шкловский Михаил Леонидович №238А
- Шкловский Леонид Аронович 1912-1976 №234
- Шнапер Злата 1864-1957 №96
- Штейнбах Наум Абрамович 1904-1957 № 164
- Штейнман Лея Еселевна 1889-1973 №144
- Штрикман Борис Абрамович 1899-1986 №211
- Штрикман Сара Евельевна 1896-1975 №212
- Штумер Мойша Самойлович 1878-1970 №203
- Штумер Бася Мотылевна 1887-1956 №67
- Штумер Михаил Моисеевич 1925-1988 №141
- Шульман Арахмел Абрамович 1905-1976 №91
- Шульман Яков Ефимович 1929-1955 №138
- Шустерман Зусь Лейвикович 1888-1963 №169
- Шустерман Иосиф Аронович 1895-1976 №233
- Шустерман Лазар Аронович 1888-1926 №46
- Шустерман Михаил Аронович 1904-1980 №45
- Шустерман Мордух Маневич 1880-1940 №85
- Шустерман Маша Эльевна 1895-1971 №179
- Шустерман Михля Лейбовна 1890-1951 №102
- Шустерман Соня Лейбовна 1909-1969 №185
261.Шухман Бейля Герцлевна 1889-1935 №18
- Шустерман Хася Марьяновна 1893-1952 №104
- Шухман Ита Боруховна 1902-1977 №255
Шухман Мане Гиршевич 1898-1942
- Этин Лев Абрамович 1887-1954 №137
- Эльпинер Михля Нафтольевна 1887-1951 №75
- Эльпинер Фира Моисеевна 1919-1952 №72
- Эльпинер Моше-Хаим Герцлевич 1989-1974 №226
- Эльпинер Эсфирь Моисеевна 1919-1983 №264
Примечение: Список составлен по оригиналу переписи захоронений, сделанной Наумом Котик в 2000 г. Часть надгробий на настоящее время разрушена, надписи не читаются. Восстановить реальное нахождение захоронений, обозначенных в данном списке, возможно сопоставляя даты и номера на существующих надгробиях со сведения о смерти из ЗАГСа.
